Haus Nordsee

Info
Ferienhaus #17224
26553, Europa, Deutschland, Niedersachsen, Nordsee Ostfriesland ,Dornumersiel.
Erholungsurlaub, Strandurlaub
Über die gesamte Länge des Hauses gibt es einen riesigen Wohnraum, in dem sich die Küche befindet (mit großem, freistehenden Kühlschrank, Cerankochfeld, Backofen, sämtl. elektrischen Kleingeräten und üppiger Ausstattung mit Geschirr, Gläser, Töpfe, usw.). Am großen Tischen können bis zu 16 Personen gemeinsam frühstücken, essen, feiern, Karten spielen, usw. Im Wohnbereich befinden sich zwei Sofas und Sessel, Flachbild-TV, DVD-Player, Stereo-Anlage. Von hier aus hat man den Blick ins Grüne und den Ausgang zu Garten und Terrasse.
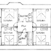
Im EG gibt es ferner 1 Schlafzimmer mit Doppelbett+Einzelbett, WC, Dusche + Sauna.
Im OG gibt es 4 weitere Schlafzimmer (alle mit Doppelbetten, zusätzlich 1 x Einzelbett, 1 x Etagenbett + 2 x Babybettchen) und 2 Duschbäder. Viel Platz und großzüguige Raumaufteilung sowohl im EG als auch im OG!
Ausstattung
Dusche, WC
Balkon/Terrasse, Garten, Grillmöglichkeit, PKW-Stellplatz
Kleinkindausstattung, Sauna
Elektroherd, Kühlschrank, Tiefkühlfach, Geschirrspüler, Mikrowelle
Radio, TV, DVD-Player, Stereoanlage
Seniorengerecht, Rollstuhlgerecht, Kinder
Umgebung
Unser Ferienhaus steht in Westerbur, einem kleinen Teilort des Nordseebades Dornumersiel. Ruhig und idyllisch ist es in dem kleinen ostfriesischen Dorf mit ca. 300 Einwohnern. Das Haus liegt etwa 500m vom Deich und der Störtebeckerstraße zurück, fast mittig zwischen Dornumersiel (ca. 2 km entfernt) und Bensersiel (ca. 5km entfernt). In beiden Sielorten gibt es feinsandige Strände und jeweils einen kleinen Hafen.
Bootsverleih, Segeln, Tauchen, Wasserski
Preise
Preisrechner
Kontakt
deutsch, englisch
07224 - 40422
0172-7287346
Nachricht schreiben
Achten Sie auf die korrekte Schreibweise Ihrer eMail-Adresse, damit der Inserent auf Ihre Anfrage antworten kann.
Felder mit sind zwingend auszufüllen.



















