Ökohaus Spaden

E-Auto Ladestation Kostenlos !
Info
Ferienhaus #30492
27570, Europa, Deutschland, Niedersachsen, Land zwischen Elbe u. Weser ,Bremerhaven.
jeder weitere Tag: 65 EUR
Erholungsurlaub, Stadt und Kultururlaub, Wanderurlaub, Sport & Aktivurlaub
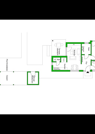
Mit 58 qm Wohn- und Nutzfläche auf einer Ebene, bieten wir bis zu 4 Personen und einem Kleinkind (bis 2 Jahren) Platz. Die komfortabel eingerichtete Küche mit Spülmaschine und das gemütliche Wohnzimmer mit angrenzender Terrasse sorgen für einen erholsamen Urlaub von Anfang an.
Freuen Sie sich auf einen schönen Urlaub in unserem 58 qm großen Komfort-Ferienhaus.
Auf dem 915 qm großen Grundstück lässt es sich wunderbar ausspannen ... Fast die Hälfte des Grundstücks wurde der Natur überlassen, Baumbestand und eine Blumenwiese sorgen für Insekten- und Tierschutz.
In nur wenigen Minuten erreichen Sie das Zentrum von Bremerhaven mit Öffentlichen Verkehrsmitteln, mit dem Fahrrad oder mit dem Auto. In Bremerhaven finden Sie zahlreiche Möglichkeiten zur Freizeitgestaltung rund um das Zentrum.
Einen zum Haus gehörendes Carport sowie einen weiteren PKW-Stellplatz finden sie direkt auf dem Grundstück vor dem Haus.
Das Haus wird mit Strom beheizt, der durch eine eigene Photovoltaik-Anlage auf dem Dach selbst gewonnen wird. Der überschüssige Strom wird in einem Hausakku gespeichert.
Größe der Betten/Bettwäsche
Schlafzimmer: 2Bettdecken in Übergröße 2,2 m
Kinderzimmer. Etagenbett 180 x 80 cm
Ausstattung
WC, Dusche
Balkon/Terrasse, Garten, Grillmöglichkeit, PKW-Stellplatz
Kleinkindausstattung, Safe, sep. Eingang, Zentralheizung
Elektroherd, Kühlschrank, Tiefkühlfach, Geschirrspüler, Mikrowelle, Geschirreinrichtung, Wasserkocher, Kaffeemaschine, Toaster, Eierkocher, Besteck, Gläser
TV, Sonnenliegen, W-LAN, Staubsauger, Kinderbett, Gartenmöbel
Seniorengerecht, Kinder, für Allergiker geeignet
Umgebung
Schiffdorf-Spaden, Bremerhaven und Umgebung
Schiffdorf-Spaden liegt an der Stadgrenze zu Bremerhaven und direkt an der Autobahn A27. Sie ereichen in weniger als 30 min die Urlaubshochburgen (Cuxhaven, Duhnen, Döse, Dorum-Neufeld, Otterndorf usw.) an der Nordsee. Ein großes Einkaufszentrum ist in unmittelbarer Nähe.
Blue Bay Spadener See
Auf der östlichen Seeseite bietet die 2019 eröffnete Wassersport- und Freizeitanlage Blue Bay Spadener See ein vielfältiges Freizeitangebot für Familien, Sportler, Badende und Hunde: im Wasserpark klettern und rutschen, mit dem Stand Up Board über den See paddeln, an Land Adventure Golfen, Beachvolleyball oder Boule spielen, hier ist für jeden etwas dabei. Mit eigenem Strandbad, Kinderspielplatz und Hundestrand, sowie einem leckeren Foodtruck und Getränkebar ist für einen erholsamen Tag am Spadener See gesorgt.
Hier wird auch eine Wasserski- und Wakeboardanlage mit Slidern und Rampen und über einem Kilometer Seillänge betrieben. Ob Anfänger oder Könner, ob Jung oder Alt, ob Wasserski oder Wakeboard, die kurvenentschärfte moderne Anlage bietet jeder Könnerstufe ihren Wasserspaß.
Dorum-Neufeld liegt dicht an der Nordseeküste – ein kleiner Ort mit großer Tradition im Fischfang. Wenn die Krabbenkutter in den kleinen Kutterhafen einlaufen, kann man fangfrische Nordseekrabben kaufen. Eine Erlebnis- und Erholungsmeile mit Abenteuerspielplatz und Sportgeräten erstreckt sich vom Kutterhafen bis zum Leuchtturm Obereversand.
Das "Museum für Wattenfischerei" und das "Nationalpark-Haus" in Dorum-Neufeld informieren über die Geschichte des Wurster Landes. Auch im kuriosen Muschelmuseum lohnt sich ein Besuch. Interessante Leuchttürme, alte Wíndmühlen und Wehrkirchen sind in vielen Orten zu finden.
In Bremerhaven, das leicht mit dem Fahrrad zu erreichen ist, laden der "Zoo am Meer" und die Hafenanlagen (Hafenrundfahrt) zu einem Besuch ein. Sehenswert ist auch das "Auswandererhaus" und das "Klimahaus" – eine Entdeckungstour durch die Klimazonen der Erde. Erholung pur bei Wellness und Sauna findet man in der "Moortherme" in Bad Bederkesa oder im "Erlebnisbad Ahoi" in Cuxhaven. Im Sommer bietet der kinderfreundliche Sieverner See eine Alternative zum Baden im Meer. In Dorum-Neufeld gibt eine moderne Minigolfanlage viel Spaß und abends bietet das "Theater Bremerhaven" ein interessantes Kulturprogramm.
Kutschfahrten, Bootsverleih, Wasserski, Tennis, Fahrradverleih, Verkauf selbsterzeugter Produkte, Golf, Surfen, Angeln, Volleyball
Bremen (50 Kilometer)
Bremerhaven-Lehe (5 Kilometer)
in 0,50 Kilometer
Preise
Preisrechner
Zusatzkosten
Kontakt
deutsch
DE366686974
047078888000
Belegungsplan für Jahr 2026
| 01 | 02 | 03 | 04 | 05 | 06 | 07 | 08 | 09 | 10 | 11 | 12 | 13 | 14 | 15 | 16 | 17 | 18 | 19 | 20 | 21 | 22 | 23 | 24 | 25 | 26 | 27 | 28 | 29 | 30 | 31 | |
| Jan | |||||||||||||||||||||||||||||||
| Feb | |||||||||||||||||||||||||||||||
| Mar | |||||||||||||||||||||||||||||||
| Apr | |||||||||||||||||||||||||||||||
| May | |||||||||||||||||||||||||||||||
| Jun | |||||||||||||||||||||||||||||||
| Jul | |||||||||||||||||||||||||||||||
| Aug | |||||||||||||||||||||||||||||||
| Sep | |||||||||||||||||||||||||||||||
| Oct | |||||||||||||||||||||||||||||||
| Nov | |||||||||||||||||||||||||||||||
| Dec |
Nachricht schreiben
Achten Sie auf die korrekte Schreibweise Ihrer eMail-Adresse, damit der Inserent auf Ihre Anfrage antworten kann.
Felder mit sind zwingend auszufüllen.



















